Купить дом 56 м² в д Гауф
ID 1791222
Цена
1 800 000 ₽
Ставка
32 143 ₽ / м²
Площадь
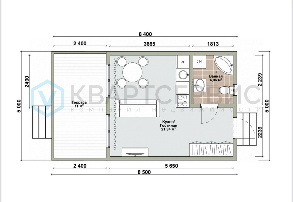
56 м²
агентство недвижимости
Омская обл, Азовский немецкий национальный р-н, д Гауф, ул Школьная, д 13
На карте
Описание
Ваш будущий дом — воплощение мечты: современный, функциональный и готовый стать сердцем вашего участка.
Возможна покупка за материнский капитал и любые виды ипотеки.
Можно выбрать готовый проект или построим дом по вашему.
АНАЛОГИЧНЫЙ дом возможно построить на любом участке!
О доме:
Надёжные, энергоэффективные дома из СИП-панелей, идеальные для комфортной жизни в любое время года. СИП-панели — это инновационный трёхслойный материал, подобный сэндвичу: две прочные плиты ОСП, надёжно укрывающие сердцевину из утеплителя. Внутри вас ждёт просторная комната, уютный санузел и вместительная терраса, созданная для вашего безмятежного отдыха.
Преимущества:
•Скорость возведения. Прецизионное изготовление панелей на заводе превращает сборку на участке в молниеносный процесс.
•Легкость фундамента. Минимальный вес дома из СИП-панелей позволяет обойтись экономичным свайно-винтовым фундаментом.
•Непревзойденная прочность. Несмотря на кажущуюся лёгкость, дом из СИП-панелей – это монолитная и надёжная конструкция.
•Устойчивость к изменчивости стихий. Влага, плесень и температурные колебания не страшны вашему дому.
•Он готов к заселению сразу после строительства, без усадки и ожидания.
В комплектацию входит:
•Винтовые сваи.
•Обвяз брусом 150*150мм.
•Коробка дома из сип-панелей 174 мм.
•Дополнительное утепление каменной ватой 50 мм(фасад, кровля).
•Система вентиляции.
•Наружная отделка дома.
•Наружные светильники.
•Окна.
•Входная дверь.
Можно выбрать комплектацию:
— Под отделку
— Whitе bох
— Под ключ
Уникальное предложение для владельцев недвижимости.
•Если у вас есть непроданная недвижимость, у нас есть решение! Мы предлагаем программу Trade-in, которая позволит вам использовать вашу старую недвижимость в качестве оплаты за новую.
•Нужна ипотека? Компания Квартсервис работает с ведущими банками, чтобы предложить вам выгодную ипотеку с низкими ставками! Это ваша возможность сэкономить время и деньги.
•Все необходимые документы уже готовы и прошли юридическую экспертизу.
Не упустите шанс, звоните нам прямо сейчас!
Показ проводится по предварительной записи в удобное для вас время.
Арт. 132436411
Возможна покупка за материнский капитал и любые виды ипотеки.
Можно выбрать готовый проект или построим дом по вашему.
АНАЛОГИЧНЫЙ дом возможно построить на любом участке!
О доме:
Надёжные, энергоэффективные дома из СИП-панелей, идеальные для комфортной жизни в любое время года. СИП-панели — это инновационный трёхслойный материал, подобный сэндвичу: две прочные плиты ОСП, надёжно укрывающие сердцевину из утеплителя. Внутри вас ждёт просторная комната, уютный санузел и вместительная терраса, созданная для вашего безмятежного отдыха.
Преимущества:
•Скорость возведения. Прецизионное изготовление панелей на заводе превращает сборку на участке в молниеносный процесс.
•Легкость фундамента. Минимальный вес дома из СИП-панелей позволяет обойтись экономичным свайно-винтовым фундаментом.
•Непревзойденная прочность. Несмотря на кажущуюся лёгкость, дом из СИП-панелей – это монолитная и надёжная конструкция.
•Устойчивость к изменчивости стихий. Влага, плесень и температурные колебания не страшны вашему дому.
•Он готов к заселению сразу после строительства, без усадки и ожидания.
В комплектацию входит:
•Винтовые сваи.
•Обвяз брусом 150*150мм.
•Коробка дома из сип-панелей 174 мм.
•Дополнительное утепление каменной ватой 50 мм(фасад, кровля).
•Система вентиляции.
•Наружная отделка дома.
•Наружные светильники.
•Окна.
•Входная дверь.
Можно выбрать комплектацию:
— Под отделку
— Whitе bох
— Под ключ
Уникальное предложение для владельцев недвижимости.
•Если у вас есть непроданная недвижимость, у нас есть решение! Мы предлагаем программу Trade-in, которая позволит вам использовать вашу старую недвижимость в качестве оплаты за новую.
•Нужна ипотека? Компания Квартсервис работает с ведущими банками, чтобы предложить вам выгодную ипотеку с низкими ставками! Это ваша возможность сэкономить время и деньги.
•Все необходимые документы уже готовы и прошли юридическую экспертизу.
Не упустите шанс, звоните нам прямо сейчас!
Показ проводится по предварительной записи в удобное для вас время.
Арт. 132436411
Расположение
Омская обл, Азовский немецкий национальный р-н, д Гауф, ул Школьная, д 13
Технические характеристики
Параметры
Водоснабжение
есть
Тип сделки
прямая продажа
Тип здания
деревянный
Электричество
есть
Канализация
есть
Отопление
есть
Параметры помещения
жилая площадь м²
36
Новость дня
Все новости
Вчера — 27 апреля, понедельник / Москва
Гастропространство «НеДетский» на 630 посадочных мест открылось в Центральном детском магазине на Лубянке.
Вчера — 27 апреля, понедельник / Москва
"FORMA завершает продажу всех офисных помещений в бизнес-центре «ЛЕЙКС»"
Вчера — 27 апреля, понедельник / Москва
"Прогноз: восстановление офисного рынка Москвы ожидается к 2028 году"
Вчера — 27 апреля, понедельник / Москва
Проект строительства промышленного парка с двумя зданиями на востоке Москвы.
Вчера — 27 апреля, понедельник / Москва
Бизнес-центр площадью 22,7 тыс. кв. м открылся в Нагатинской пойме.
Вчера — 27 апреля, понедельник / Самарская
Недостроенный птицеводческий комплекс "Евробиотех" в Самарской области ищет покупателя
Вчера — 27 апреля, понедельник / Москва
"Планируется строительство восьмиэтажной автостоянки с коммерческими помещениями на 465 машиномест в Новой Москве"
Вчера — 27 апреля, понедельник / Москва
"«Монарх» приобрел участок площадью 1,36 га на территории бывшего Карачаровского механического завода"
Вчера — 27 апреля, понедельник / Москва
"Производство растительного молока от Сварщицы Екатерины"
Вчера — 27 апреля, понедельник / Москва
"Будущее магазинов Gate 31 под угрозой из-за финансовых трудностей"
Вчера — 27 апреля, понедельник / Воронежская
Название статьи: "Открытие клубов Spirit Fitness площадью не менее 1,6 тыс. кв. м в Воронеже и Липецке"
24 апреля, пятница / Москва
"Продажа бывшего офиса ПСБ на Таганке на аукционе"
24 апреля, пятница / Москва
Компания Level Group планирует создать в юго-восточной части Москвы Многофункциональный комплекс с отелем, термальным центром и спортивными объектами
24 апреля, пятница / Москва
"Более миллиона квадратных метров складских помещений доступны для использования в Московском регионе"
24 апреля, пятница / Санкт-Петербург
Инвестиции в петербургскую недвижимость уменьшились на 9% за первый квартал
24 апреля, пятница / Москва
В Бутырском районе планируют построить бизнес-центр с амфитеатром.
24 апреля, пятница / Москва
"ГК «Калашников» приобрела часть акций десяти швейных фабрик"
24 апреля, пятница / Москва
"«Восток Инвестиции» приобрел долю в 20% компании Tasty Coffee"
24 апреля, пятница / Москва
Магазин «М.Косметик» открыл свой первый филиал в Краснодарском крае, специализирующийся на товарах для дома.
24 апреля, пятница / Москва
В Тверском районе Москвы планируется создание дворцово-садового комплекса с водоемом рядом с жилым домом.